一、现场情况:
?
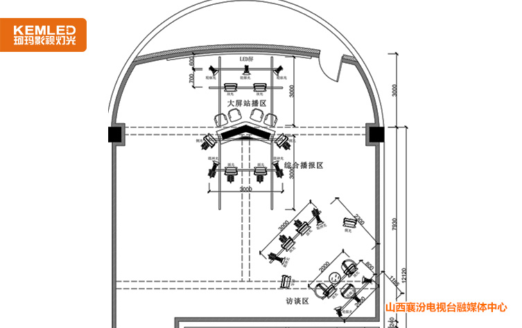
襄汾广播电视台演播室现场房间高度是4米,有LED大屏,LED大屏宽度约6米,高度2.24米,大屏离横梁3米,有横梁阻隔,梁离地3.23米,竖梁离地3.37米,现场以竖梁为中心点,导致轨道不能做成完整的,站播区和综合播报区共用一组灯具,使用固定轨和滑轨安装,播报区播音桌离大屏约3米。访谈区用固定轨安装,访谈区的两台侧光用三脚架支撑,因为现场是用玻纤板封顶,封顶后离地高度约为2.9米,所以需要提前进场做完吊挂工程,然后做顶部封顶。站播区和综合播报区灯光操作的空间不封顶。项目可分两次进场施工,先走线做吊挂工程,装修完后再挂灯。
二、、灯光设计:
珂玛灯光设计师王晶了解了襄汾广播电视台演播室之后,结合在演播室灯光行业多年来的经验,共设计了12台KM-S10演播室LED平板柔光灯,用于演播室主持人面光,侧光,使人物轮廓更加清晰。另配置10台KM- M10高显指演播室专用影视聚光灯,用做主持人轮廓光和眼神光,使色彩还原性更好。灯光设计方案图纸如下:

三、施工难点:
1.现场没有电梯,需要把货搬至5楼 。
2.现场装修赶工期封顶,所以需要我们的人先把吊挂工程做完,施工时间比较紧。
3.站播区和综合播报区共用一组灯,综合播报区播音桌带轮子,不用的时候移走,用的时候就放上去,灯具都是根据滑轨去调节位置满足用户的需求。
四、验收效果:
珂玛施工团队安装完成后,对每个灯光的通道,色温,显指进行了反复调试。调试完毕后,让领导进行验收,在现场将灯光打开,整个灯光区域光线均匀,良好的色彩还原。领导表示满意,项目验收成功。施工完毕后灯光效果实拍图如下:




【好演播室灯光,在武汉珂玛】
武汉珂玛一站式采购+服务:产品品类齐全,资质认证齐全。并拥有20多位5年以上经验的灯光设计师以及一流施工团队,提供专业灯光解决方案,满足不同景区、不同面积、不同节目类型的需求。
 鄂公网安备 42011102004336号
    鄂公网安备 42011102004336号  

